Many
Manuals
search
Categorie
Marchi
Home
Linear
no
Boiler
Manuale Utente
Linear Boiler Manuale Utente Pagina 22
Scaricare
Condividere
Condivisione
Aggiungi ai miei manuali
Stampa
Pagina
/
28
Indice
SEGNALIBRI
Valutato
.
/ 5. Basato su
recensioni clienti
1
2
3
4
5
6
7
8
9
10
11
12
13
14
15
16
17
18
19
20
21
22
23
24
25
26
27
28
BIASI B/
40
PAGE 22
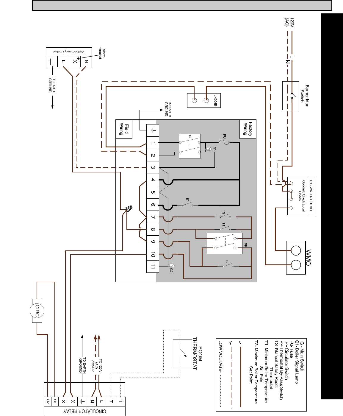
B-40 Contr
ol Panel
W
iring Diagram for Ri
ello Oil Burner
1
2
...
17
18
19
20
21
22
23
24
25
26
27
28
6-12 SECTION
1
TABLE OF CONTENTS
3
WARNING
5
2. General Information:
6
4. Combustion Air Supply:
7
5. Boiler Location:
7
6. Boiler Block Assembly:
8
8. Burner Setup:
10
9. Gas Line Piping
12
PAGE 13
13
BIASI B/40
13
10. Breeching and Venting:
14
11. Piping:
15
10. Blocked Flue Switch:
15
PAGE 16
16
12. Boiler Jacket Assembly:
17
13. Wiring:
18
CONTROL PANEL DESCRIPTION
19
CIRCULATOR RELAY
20
BURNER CONTROL
20
PAGE 22
22
Burner Primary Control
23
14. Commissioning:
24
15. Maintenance:
24
16. Installer Notes
25
PAGE 26
26
PAGE 27
27
Warranty
28
Commenti su questo manuale
Nessun commento
Publish
Prodotti e manuali riguardandi no Linear Boiler
no Linear MDT-2 Manuale Utente
(2 pagine)
no Linear DX-COKIT Manuale Utente
(2 pagine)
no Linear RE-BWC1 Manuale Utente
(1 pagine)
no Linear DR2 Manuale Utente
(1 pagine)
no Linear 3060 Manuale Utente
(2 pagine)
no Linear Central Vacuum Manuale Utente
(1 pagine)
no Linear Sander WO15Z-1 Manuale Utente
(2 pagine)
no Linear Drums 5525 Manuale Utente
(12 pagine)
no Linear DMC-10 Manuale Utente
(2 pagine)
no Linear Automobile Electronics 216559 B Manuale Utente
(2 pagine)
no Linear DXS-10 Manuale Utente
(1 pagine)
no Linear XR-16 Manuale Utente
(2 pagine)
no Linear 115500 B Manuale Utente
(1 pagine)
no Linear 2500-2346-LP Manuale Utente
(2 pagine)
no Linear V361 Manuale Utente
(1 pagine)
no Linear Satellite Radio 3089 Manuale Utente
(2 pagine)
no Linear wt00z-1 Manuale Utente
(4 pagine)
Stampa documento
Stampa pagina 22
Commenti su questo manuale